UNIQUE LICENSED PLOT OF LAND 4.100M2 - PORTO CHELI, ARGOLIDA
Price 430,000 €

Discover an exceptional opportunity in Porto Heli, Argolis, Greece—a 4,100 m² freehold plot offering uninterrupted, open sea views of the Argolic Gulf with Spetses on the horizon. Positioned just two minutes from the world-renowned AmanZoe resort, this property occupies Porto Heli’s most prestigious address and provides a rare combination of location, privacy, and ready-to-build convenience.

South-facing, the land enjoys full Mediterranean sunlight throughout the day, and with a licensed building permit already granted, the lengthy approval process is entirely bypassed, allowing construction to begin immediately.

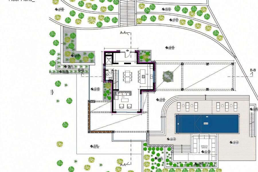
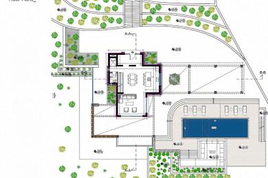
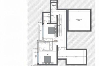
The plot comes with a meticulously designed villa concept spanning three levels, totaling 373 m². The top level features a bright, open living, dining, and kitchen area that opens onto a terrace with panoramic sea views. The main level hosts three master bedrooms with ensuite bathrooms, while the lower level offers two additional master bedrooms, providing an ideal balance of luxury and comfort.

Every room is designed to capture natural light, with precision planning and topographic surveys completed. An infinity-edge pool with a sunken lounge and fire pit creates a seamless connection between the villa and the sparkling sea, framing unforgettable golden-hour sunsets.

Features
• Location: Porto Heli, Argolis, Greece, 2 minutes from AmanZoe resort
• Plot Size: 4,100 m² freehold
• Views: Unobstructed open sea views of the Argolic Gulf; Spetses on the horizon
• Orientation: South-facing, full Mediterranean sunlight all day
• Build Status: Licensed and ready to build; no waiting period
• Design: Approved villa design included, 3 levels, 373 m² total
• Level +01: Living, dining, kitchen with terrace and sea views
• Level +00: Three master bedrooms with ensuites
• Level -01: Two master bedrooms with ensuites, lower retreat
• Pool: Infinity-edge pool with sunken lounge and fire pit
• Materials & Style: Local stone, floor-to-ceiling glass, contemporary design harmonizing with landscape
• Proximity & Prestige: Directly behind AmanZoe, Porto Heli’s most prestigious address

Λεπτομέρειες Ακινήτου:
  • ID: 4092
  • Νομός: ΠΕΛΟΠΟΝΝΗΣΟΣ
  • Περιοχή: ΑΡΓΟΛΙΔΑ
  • Συνοικία: ΠΟΡΤΟ ΧΕΛΙ
  • Τύπος: Πώληση
  • Είδος: Οικόπεδο
  • Εμβαδόν: 4,100 τ.μ
Χαρακτηριστικά Ακινήτου: